商品の詳細
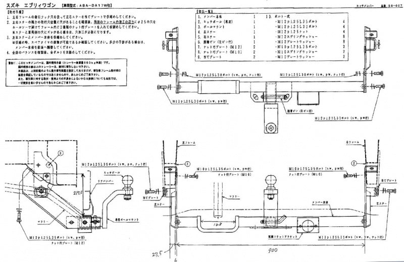
エブリィ
【適合型式】DA17W,DA17V
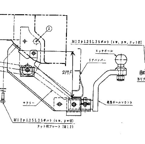
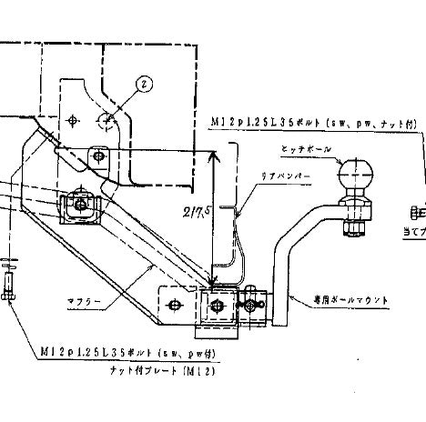
メインバー部に角パイプを使用したスチール製ヒッチメンバーです。
メインバー部・ボールマウント・取付ステー等は焼付塗装で、ヒッチボールはスチールにクロームメッキ処理、脱着ピンもスチールでメッキ処理を施しております。
******************************
【牽引力】B
【ボールマウント】専用ボールマウント
【取付難易度】☆☆
要穴あけ
******************************
【角型スチール(HC)】
※メインバー(角型)・付属品ともにスチールのタイプ※
【セット内容】
ボールマウント/ヒッチボール/脱着ピン/取付ステー・ボルト/配線ソケット取付ステー/配線キット
●ヒッチメンバーは、予定納期は約2~3週間。
●一部の車種については適合確認のため車検証のFAXをお願いする場合がございます。
【おことわり】
・適合確認等は、必ずご注文前にお願いします。
・写真は例で車種により取付方法及び形状が異なります。
・牽引車側に加工等必要な場合がありますので、詳しくはお問い合せください。
・受注生産品に付き、返品交換不可。
【配送に関するご案内】
・商品の形状の都合上、他商品との同梱不可。
・メーカー直送品のため代引支払い不可。
・沖縄への配送は、船便のため発送後7-10日のお届けとなります。